Menu

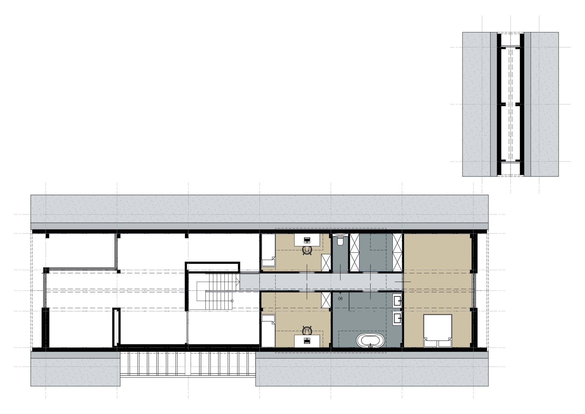
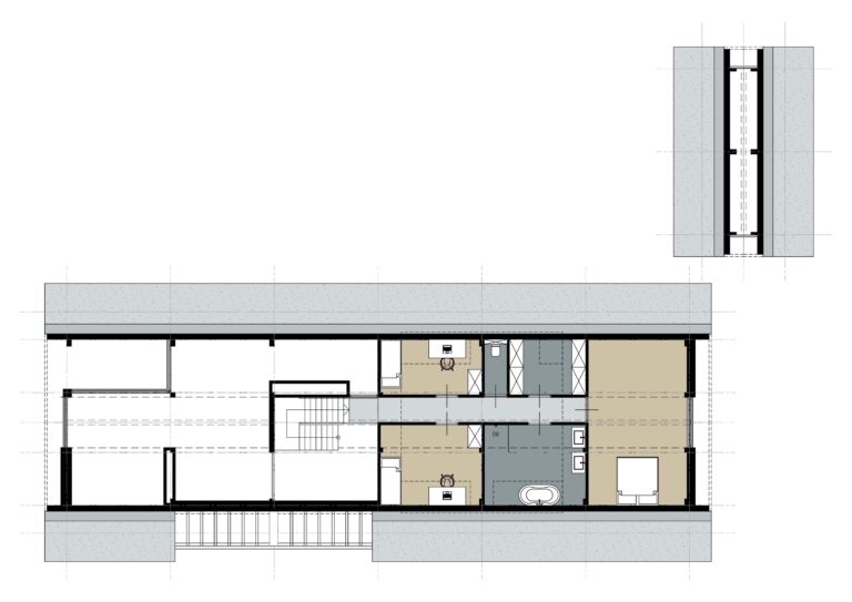
Deze moderne, landelijke en vrijstaande villa is gesitueerd in plangebied “Het Eethense Weideland”, 4 bouwkavels in een carré omsloten door een waterloop aan de rand van het dorp Eethen. De 4 kavels zijn gelegen op een terp met allen een schitterend uitzicht. Het ontwerp voor de villa is geïnspireerd op het beeld van een boerenschuur, met een houten draagconstructie, donker metselwerk en een rieten kap. Grote glasvlakken in het dak en in de gevel zorgen voor veel licht in het interieur en een goede verbinding met de (overdekte) buitenruimte. In het interieur geven grote vides boven de woonkamer, eetkamer en keuken zicht op de kap.

Dit project is onlangs gepubliceerd in het toonaangevende woon- en lifestylemagazine The Art of Living.